Gestaltungswettbewerb für ein Freiheits- und Einheitsdenkmal in Berlin 2009
Auszug der Ausschreibung:
Der Deutsche Bundestag hat am 9. November 2007 beschlossen, dass die Bundesrepublik Deutschland zum Gedenken an die friedliche Revolution im Herbst 1989 und an die Wiedergewinnung der staatlichen Einheit Deutschlands ein Denkmal der Freiheit und Einheit Deutschlands errichtet. Dieses soll zugleich die freiheitlichen Bewegungen und die Einheitsbestrebungen der vergangenen Jahrhunderte in Erinnerung rufen und würdigen. (…)
Das Denkmal für Freiheit und Einheit soll als nationales Symbol in der Mitte der deutschen Hauptstadt errichtet werden. Seine Aussagekraft und Wirkung sollen sich über die Form und Gestalt entfalten.
Auf andere Städte, vor allem auf Leipzig, das eine herausragende Rolle bei der friedlichen Revolution spielte, soll Bezug genommen werden. In Leipzig selbst soll – außerhalb dieses Wettbewerbs, gemeinsam mit dem Freistaat Sachsen und der Stadt Leipzig – der Beitrag der Bürgerinnen und Bürger dieser Stadt zur friedlichen Revolution auf angemessene und sichtbare Weise gewürdigt werden. Als Standort für das zukünftige Denkmal der Freiheit und Einheit wurde der Sockel des ehemaligen Nationaldenkmals für Kaiser Wilhelm I. auf der Schlossfreiheit festgelegt.

Beschreibung der Wettbewerbsarbeit:
Dieses Monument basiert auf zwei historischen Momenten:
dem 27. Mai 1832 am Hambacher Schloss und dem 9. Oktober 1989 in Leipzig. Diese Daten prägen das Innere des Ringes: Das Symbol einer von Vielen in Freiheit gewählten Einheit. Hier wird Geschichte metaphorisch sichtbar: Als Brückenschlag, als verspiegeltes Wasser, als Verwandelgang
Baukunst kann die Geschichte nicht wiedergeben, aber sichtbar machen und erlebbar:
Beim Betrachten, beim Betreten, beim Besteigen, beim Bedenken.
WIE kann ein Denkmal einen metaphorischen Einblick in die Geschichte eines Volkes ermöglichen, volksnah sein und doch frei von Volkstümlichkeit?
Wie kann die Einheit als fortwährender Prozess vermittelt werden und die Freiheit als permanente Herausforderung?
WIE kann dieses Denkmal auch zu jenen – Deutschen – sprechen, die die Geschichte nicht kennen – und wie zu den nachkommenden Generationen?
WIR haben ein von Ruhe, Klarheit und Transparenz geprägtes Ensemble geschaffen, in dessen Mittelpunkt die Ideale unserer Freiheit und Einheit als Ausdruck einer Bewegung in Deutschland und Europa erfahrbar werden.

SIE überqueren das Wassers, durchschreiten den Ring, verlassen die Brücke am anderen Ufer, folgen dem Wandelgang durch die Kolonnaden – und steigen schließlich der Geschichte aufs Kolonnadendach:

◄ Entwurfsansicht von der Kreuzung Schlosspatz/Schlossfreiheit in Ri NW

◄ Entwurfsansicht der Treppe zum Ring

◄ Entwurfsansicht vom Wandelgang hinter dem Ring
Oben schweift der Blick über das Hier und Heute einer historischen Hauptstadt-Landschaft. Der Ring, die Brücke, der Himmel und die Säulen spiegeln sich im Wasser.
Dieses Kunstwerk macht Geschichte sichtbar. Jeder kann sie an diesem Ort der Freiheit und Einheit erleben: Alleine – und mit Allen.

◄ Entwurfsansicht der rechten Kopfbaufassade
„Wir sind das Volk“
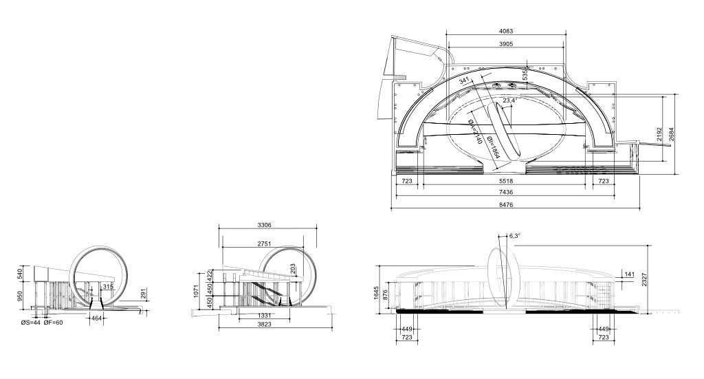
Die Baumaßnahmen im Sockelbereich: Der Sockel bleibt in seiner Form uneingeschränkt erhalten. Die Säulen müssen im Sockel gegründet werden. Die Skulptur im Zentrum sitzt auf einem Fundament unter der Wasserfläche und auf dem historischen Sockel.
Der Ring: Segmentierte Formelemente aus Edelstahl auf einer innenliegenden Stahlrahmenkonstruktion. Der Ring wird auf einem Fundament gegründet, das unter der Wasserfläche und auf dem historischen Sockel liegt.

Das Wasser tritt rings um die „Fußzone“ aus und läuft gleichmäßig über eine gewölbte Edelstahlfläche in das umgreifende Becken aus Marmor. Der Abfluss des Wassers erfolgt über die Basis des historischen Sockels des ehemaligen Reiterstandbildes. Von einem Sammelbecken unterhalb des Wasserabflusses wird das Wasser wieder zum Austritt um den Ring gepumpt.
Die polierte Edelstahlfläche: Das Wasser wird in einem dünnen Film über diese Fläche ablaufen und die Reflektion des Himmels sanft brechen.
Das Wasserbecken unter der gewölbten Edelstahlblechfläche und die Führungen des Wassers über die Fundamentbasis bestehen aus Marmor.
Die Seitentrakte des Monumentes werden als Stahlkonstruktion mit vorgehängter Mehrfachverglasung ausgeführt.
Die Säulen in der Kolonnade und in den Seitentrakten stehen genau an den Positionen der historischen Säulen. Die tragenden Säulen sind Teil der statischen Konstruktion. Die nichttragenden Säulen werden mit einer zylindrischen Lampenform abgeschlossen.
Die gläserne Brücke soll aus Verbund-Sicherheitsglaselementen mit einer untenliegenden Stahlrahmenkonstruktion umgesetzt werden.
Die elliptische Dachform besteht aus Stahlbeton mit vorgehängten Natursteinplatten.